| 
Die allgemeinen Empfehlungen
zu Entwurf, Material und Bau eines Modls gelten auch für das Modulsystem
H0-USA. Auf dieser Seite werden daher nur Besonderheiten und Abweichungen
behandelt.
Standards, technische Daten
Thema
Dargestellt wird eine eingleisige, normalspurige
Bahnlinie im Westen der USA in der Zeit von 1950 bis 1970.Den
Wünschen einiger Mitspieler folgend, wird es bei nächster
Gelegenheit (voraussichtlich in Unna 2008) einen Fahrplanbetrieb geben,
der bis in die Gegenwart hineinreichen wird. Es wird von der Nachfrage
abhängen, ob sich eine Erweiterung des Zeitfensters hier festschreiben
lässt.
Neben den in dieser Epoche dort dominierenden Bahngesellschaften wie
UNION PACIFIC, SANTA FE, SOUTHERN PACIFIC u.A., sieht unser Spielbetrieb
auch den Einsatz anderer hier anzutreffender, für diese Region
weniger dominanter, Bahngesellschaften ausdrücklich vor. Angestrebt
wird das gestalterische Nachempfinden einer für diese Gegend typischen
Landschaft. Jedes Motiv sollte deshalb sorgfältig recherchiert
werden. Auf den einzelnen Modulen kann ein dem Thema entsprechendes
Motiv frei gewählt werden.
Im Westen/Südwesten der USA überwiegt ein eher
trockenes Klima. Dementsprechend ist der Untergrund je nach gewähltem
Vorbild in gelben bzw. roten Farben zu halten. Die einheitliche Grundfarbe
an den Modulenden soll vertrocknetes Grasland darstellen. Dieser Farbton
ist aus Woodland-Scenics – Material zu mischen:
2 Teile T43 + 1 Teil T44 + 2 Teile T50
Telegrafenmasten werden gern gesehen: ab ca.15 cm vom
Modulkopf beginnend, Abstand der Masten untereinander jeweils ca. 30-35
cm, optisch gemittelt. Die Masten sollten möglichst über zwei
Quertraversen verfügen. Evtl. sind Einsteckmöglichkeit für
die Masten optional beiderseits der Strecke vorzusehen! Auf Betriebsstellen
sollten die Telegrafenmasten möglichst auf der dem Bediener abgewandten
Seite stehen. Eine Bespannung ist nicht vorgesehen.
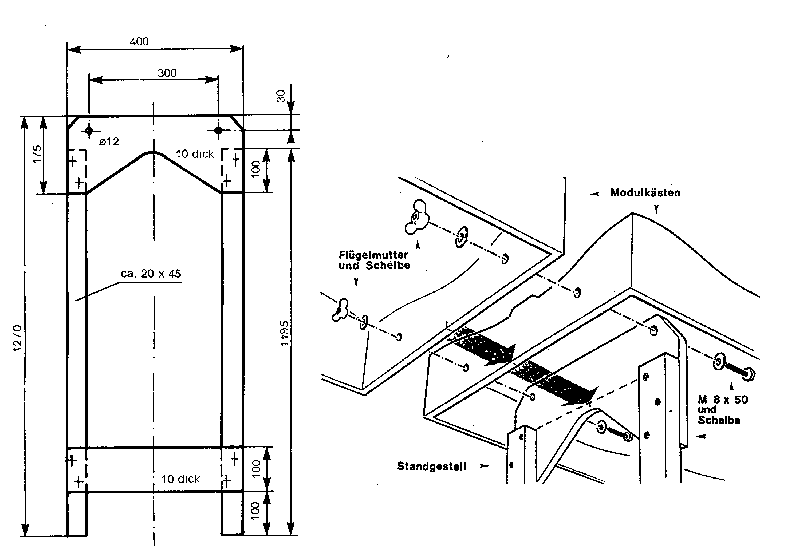
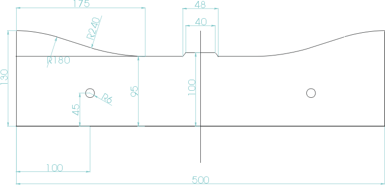
Modul-Endprofil
Das Endprofil ist 500mm breit und stellt eine flache
Talmulde dar. Durch die zur Gleisachse symmetrische Form ergibt
sich immer eine bruchlose Landschaft. Die Normhöhe der Schienenoberkante
beträgt 1300mm über Fußboden.
Die Endprofile sind 500mm breit und 130mm hoch, die Auflage für
die Schwellenunterkante ist 100mm über der Profilunterkante.
Jedes Endprofil hat zwei 12mm Löcher, deren Zentrum sich 55mm
unter der Schwellenunterkante und je 150mm links und rechts der
Gleismitte befinden. Die verwendeten M8 Schrauben erlauben kleinere
Korrekturen.
Die Länge und die geometrische Form der Module zwischen den
Endprofilen ist freigestellt. |
 |
oder als .pdf
file
Modulfüße
Bei H0-USA wird, abweichend von meisten anderen Modulsystemen,
die Befestigung der Beine mit der Verbindung der Module gekoppelt und
auf eine Höhenverstellung verzichtet. Dieses Verfahren spart Modulbeine
ein und macht das Arrangement im aufgebauten Zustand übersichtlicher,
erschwert aber andererseits den Aufbau, da kein Modul allein stehen
kann.
Jedes Beinpaar besteht aus zwei Leisten 20*45mm, die 1195mm
lang sind. Diese sind mit zwei Sperrholzplatten von 400mm Breite miteinander
verbunden. Die untere Platte beginnt 100mm über Grund (=Leistenende)
und ist 100mm hoch. Die obere ist 175mm hoch, von denen 75mm über
das obere Leistenende hinausragen. Die Ecken dieses oberen Verbindungsbretts
sind abgeschrägt/abgerundet. In diesem befinden sich zwei 12mm
Bohrlöcher 30mm vom oberen und je 50mm vom seitlichem Rand , also
300mm voneinander entfernt.
Das gesamte Beinpaar wird, mit den Leisten nach aussen, an die Innenseite
des Übergangsprofils des ersten Modulkastens gehalten. Der Modulkasten
ruht dabei auf den Leistenköpfen. Der zweite Modulkasten wird angehalten
und dann werden durch das Verbindungsbrett und beide Endprofile zwei
entsprechend lange M8 Schrauben gesteckt und nach genauer Ausrichtung
der Modulkästen fest angezogen.
Anmerkung: diese Verknüpfung von Beinbefestigung und Modulausrichtung
funktioniert bei einem eingespielten Aufbauteam, das strikt dem vorgegeben
Plan folgen kann, gut. Die anderen Modulsysteme, insbesondere H0-Europa
haben Beinbefestigung, Höhenregulierung und Modul-(Gleis-) ausrichtung
strikt getrennt.

Gleise
Es werden Gleise mit Code70 bevorzugt, Code 83 ist zugelassen. Empfohlen
werden entsprechende Produkte der Firmen Shinohara, PECO, Walthers und
Selbstbaugleise. Die Schienenprofile enden bündig außen am
Modul-Endprofil. Die Schwellen liegen direkt auf dem Holz der Endprofile
auf.
Hauptgleise: Mindestradius 1200 mm (50"), Weichen mindestens #6
Nebengleise: Mindestradius 600 mm (24"), Weichen mindestens #5
Schienenverbinder an den Modulenden sind nicht vorzusehen.
Die Herzstücke der Weichen müssen polarisiert
sein. Überhaupt müssen die Weichen DCC-freundlich sein, vergleiche
die DCC-Seiten
des FREMO, besonders über Weichen.
Zubehör für
Zubehör für Betriebsstellenmodule
Betriebsstellen mit Güterverkehr sollten unbedingt mit einer Ablagemöglichkeit
am Modulkasten versehen sein, die Wagenkarten der sich dort befindlichen
Wagen aufnehmen kann. Besser ist es, für jedes Gleis eine separate
Ablagemöglichkeit zu haben. Darüber hinaus braucht man eine
Ablagefläche für Handregler, Ladungseinsätze und den
Fahrplan.
Fahrzeuge
Alle Schienenfahrzeuge sind mit Kadee-Kupplungen (oder kompatiblen)
und RP-25 Radsätzen auszurüsten.
Die Wagengewichte errechnen sich nach der NMRA-Empfehlung RP-20.1 Umgerechnet
auf deutsche Maße hat jeder Wagen ein Grundgewicht von 30g, sowie
für jeden Zentimeter Länge weitere 6g.
Es sind nur nichtmagnetische Achsen zu verwenden, die Stahlgewichte
der Wagen sind durch andere Materialien zu ersetzen (Messing oder Dachdeckerblei).
Auch an anderes magnetische Eisen wie die Stahlschrauben der Drehgestelle
denken. - Und ggf. ersetzen!
Rollmaterial hat altersgemäße Betriebsspuren (weathering)
aufzuweisen. Neuware (schachtel- neu sauber) wird nur in Notfällen
und bei ausdrücklicher Materialknappheit an geeigneten, gealterten
Fahrzeugen eingesetzt.
Farbgebung
Die Seitenteile des Modulkastens sind in RAL 1001 matt beige zu streichen
Die einheitliche Grundfarbe der Landschaft an den Modulenden soll vertrocknetes
Grasland darstellen.
Elektrik
H0-USA Unna Division fährt seit den Jahr 2000 digital im DCC-Format.
Als Zentralen dienen die Intellibox von Uhlenbrock oder der Digitrax
Chief. Jede Betriebsstelle wird über einen eigenen Booster gespeist.
Erlaubt sind alle für den FREMO-Betrieb tauglichen Booster mit
mind. 3A Abgabeleistung. Wichtig ist dabei ein für diesen Booster
genügend leistungsfähiger Trafo! Die Leistung des Trafos muss
min.20% über der max. Abgabeleistung des Boosters liegen. Hier
sei noch einmal auf die DCC-Seiten
des FREMO im WWW verwiesen. Die Ansteuerung der Booster erfolgt
über das Loco-Net. Die Loksteuerung erfolgt ebenfalls über
das Loco-Net mit FRED oder anderem
tauglichen Handregler. Als Anschlüsse für die FRED dienen
Loco-Net-Boxen oder entsprechende Buchsen.
Der elektrische Aufbau der Module für den Digitalbetrieb
ist noch einfacher gehalten als bei der Analogtechnik.
* 2 mit den Schienen der Module verbundene Kabel (Farbmarkierung
Grün, Querschnitte der Versorgungsleitungen unter dem Modul 1,5mm2
oder gar 2,5mm2 - Soundloks)
leiten den digitalen Fahrstrom von dem Booster zu den Gleisen.
* Um den Aufbau zu vereinfachen und Vertauschungen zwischen
den Schienen zu vermeiden wird in der Verkabelung das sogenannte Hetero-System
eingeführt.
Anschluss der Parallelkabel (Hetero-Prinzip)

Das bedeutet, dass das in Fahrtrichtung mit der rechten
Schiene verbundene Kabel 50cm über das Modulende hinausragt und
direkt in einem Stecker endet. Das andere Kabel endet wie bisher in
einer Buchse.
* Zwischen zwei Boosterbezirken wird keine Verbindung
der Fahrstrombuchsen hergestellt.
Für Betriebstellen mit elektrisch betriebenen Weichen,
Signalen und Beleuchtung ist ein separater Transformator vorzusehen.
Jeder Transformator muß den einschlägigen Vorschriften (DIN,
VDE, GS usw.) entsprechen.
Die sekundären Wechselstromausgänge dieses Trafos dürfen
NIEMALS mit den Wechselstromleitungen des Moduls (wie
oben beschrieben) verbunden werden. Eine solche Verbindung ist lebensgefährlich
! |